语言选择:中文版ENGLISH
专心做好钢结构
强大的公司实力保证您售后无忧
我们可为您提供以下服务
多种系列产品任你选,总有一款适合你
成千上万成功案例
产品热销到中东、非洲、东南亚、欧洲、南美洲等60多个国家和地区
ADVANTAGES
选择胜邦钢构的
4大优势
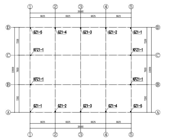
胜邦钢构精于制作钢结构厂房、仓库、物流中心、体育馆、飞机库、钢构超市、高层建筑钢构、集装箱房屋等钢结构建筑...
Shengbang Steel Structure is good at manufacturing steel structure factory buildings, warehouses, logistics centers, stadiums, hangars, steel structure supermarkets, high-rise steel structures, container houses and other steel structure buildings ...
准时交付,保质保量
专属设计师深化方案
严控品质,多道加工工序
客服人员7*24小时为您服务
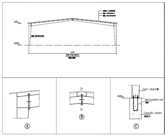
严谨的工艺流程
严格保证产品良品率,严控一道道加工工序,为您生产高质量产品

1设计图

2生产图

3备料

4多头数控CNC切割机

5组立

6自动埋弧焊接

7翼缘板调直

8铆工制作

9焊接

10质检

11打砂除锈

12喷涂

13包装

14装柜发货

15基础预埋件

16立柱吊装

17横梁吊装

18维护系统安装

19排水系统

20竣工
关于胜邦钢结构
专业承建钢结构建筑的发展型企业

信息中心
想了解更多可以关注我们的资讯
| 快捷通道 |
|
||||||||||||||||||
| 同城夜约会 | 深圳佳丽百花楼论坛官网 | 小姐附近的电话号码 | 北京品茶红蜻蜓论坛热门话题 | 西安高端工作室喝茶 | 福州大学城200块随叫随到 |
| 酒泉市 | 扶余县 | 龙岩市 | 江口县 | 仪征市 | 横山县 |
| 沭阳县 | 汝州市 | 盘山县 | 和平区 | 密山市 | 泰宁县 |
| 兰考县 | 盐边县 | 龙游县 | 宁河县 | 永康市 | 金塔县 |